Rotterdamsedijk 186A

3112 BL Schiedam

Prijs

€ 250.000,- k.k.

Bouwjaar

1937

Woonoppervlakte

89 m2

inhoud

321 m3

Aantal kamers

5

Aantal Slaapkamers

4

Geintereseerd?

NEEM CONTACT OP MET DE MAKELAAR

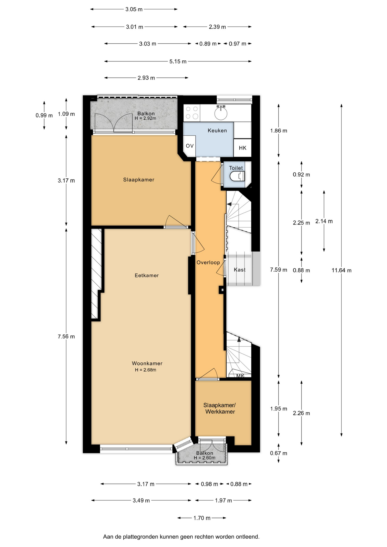
Prachtig 5-kamerappartement van 89 m2 gelegen aan de levendige Rotterdamsedijk tussen het historische centrum van Schiedam en het moderne Rotterdam. Deze sfeervolle woning beschikt o.a. over een ruime woonkamer, 4 slaapkamers en 2 balkons met verschillende zonliggingen. De Rotterdamsedijk is een gezellige en karakteristieke straat met alle voorzieningen binnen handbereik. Op korte loopafstand bevindt zich het charmante centrum van Schiedam met haar gezellige cafés, restaurants en winkels. Bovendien ligt het centrum van Rotterdam op slechts een kwartier fietsen. De ligging van het appartement is uitstekend te noemen! De tram richting Rotterdam en Schiedam stopt praktisch voor de deur, waardoor beide stadscentra snel bereikbaar zijn. Supermarkten, scholen, een drogist en sportfaciliteiten bevinden zich in de directe omgeving. En met de uitvalswegen A4 en A20 om de hoek ben je met de auto in een mum van tijd onderweg richting Den Haag, Hoek van Holland of Gouda.

Indeling:
Opgang naar de 1e verdieping

1e verdieping:
Overloop met vaste kast, separaat toilet en toegang tot alle vertrekken. De woonkamer is gelegen aan de voorzijde en is erg ruim te noemen. Door de grote raampartijen is dit een fijne en lichte ruimte. De woonkamer biedt voldoende ruimte voor een riante zithoek. De eerste slaapkamer op deze verdieping is gelegen aan de achterzijde en biedt voldoende ruimte voor een tweepersoonsbed en een kledingkast. Middels openslaande deuren heb je toegang tot het 1e balkon. De 2e slaapkamer is gelegen aan de voorzijde en wordt op dit moment gebruikt als werkkamer. Tevens heb je toegang tot het 2e balkon gelegen op het zuiden, hier kan je heerlijk van de zon genieten. De keuken beschikt over diverse inbouwapparatuur zoals een 4-pits gasfornuis met afzuigkap, oven, magnetron en voldoende opbergruimte.

2e verdieping:
Overloop met berging (met wasmachine-aansluiting) en toegang tot de 2 slaapkamers. De 3e slaapkamer is erg ruim te noemen en beschikt over toegang tot de badkamer. De badkamer beschikt over een ligbad, handdoekradiator, douche en wastafel met wastafelmeubel.

Bijzonderheden:
-Woonoppervlakte 89 m2
-Bouwjaar 1937
-Eigen grond
-4 slaapkamer
-Dit appartement is voorzien van 2 balkons
-Verwarming en warm water door middels C.V., bouwjaar 2024
-Actieve V.v.E., bijdrage € 150,- per maand
-In de koopakte zal gezien het bouwjaar een ouderdoms-, en een funderingsclausule worden toegevoegd

Wil je als eerste op de hoogte zijn van ons aanbod?
Volg ons op Instagram @vandevijver_makelaardij of TikTok @vandevijvermakelaardij

Oplevering:
-In overleg

vandeVijver Makelaardij behartigt de belangen van de verkopende partij, schakel uw eigen aankoopmakelaar in.

Bovenstaande presentatie is niet meer dan een uitnodiging tot het doen van een bod, er kunnen geen rechten of verplichtingen aan worden ontleend.

Geintereseerd?

NEEM CONTACT OP MET DE MAKELAAR