Koraalstraat 4B

3051 VH Rotterdam

Prijs

€ 335.000,- k.k.

Bouwjaar

1929

Woonoppervlakte

69 m2

inhoud

270 m3

Aantal kamers

3

Aantal Slaapkamers

2

Geintereseerd?

NEEM CONTACT OP MET DE MAKELAAR

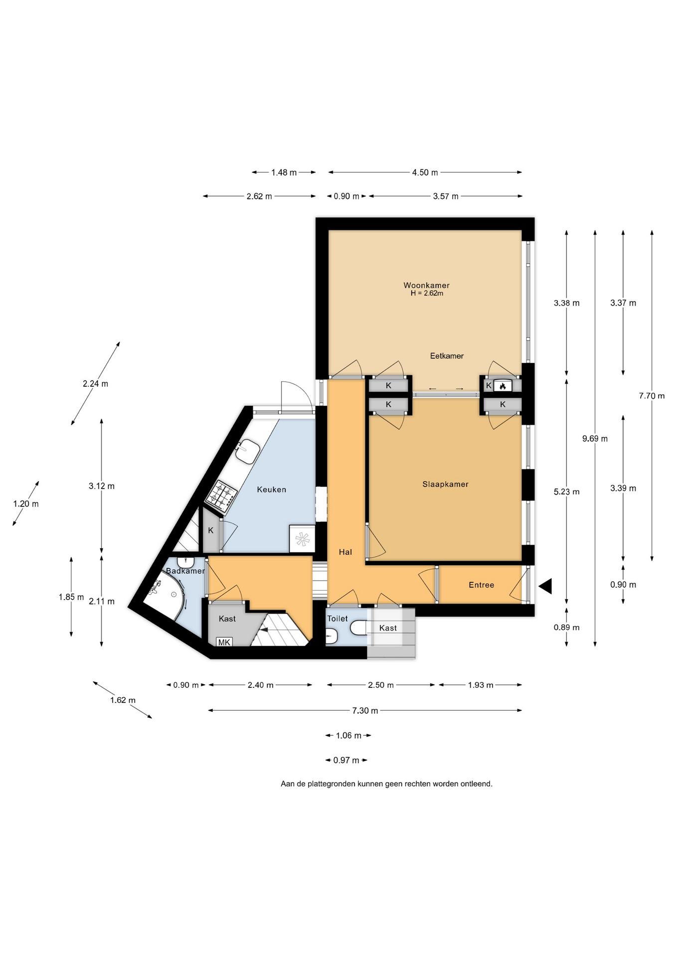
Leuk, intern gerenoveerd, 3-kamer benedenwoning van 69 m2 gelegen in de wijk Hillegersberg-zuid. De woning beschikt o.a. over een ruime woonkamer en suite, twee slaapkamers en een buitenruimte. De buurt staat bekend om zijn groene, rustige omgeving en sfeervolle dorpskarakter. De woning is gelegen in een bruisende omgeving, met veel jonge gezinnen, kinderopvang, basisscholen en voortgezet onderwijs in de buurt. Bovendien zit de buurt vol met goede restaurants, knusse koffietentjes en wateren in de buurt. Uitvalsweg (A20) is op 5 autominuten afstand en fietsend of met openbaar vervoer is de binnenstad en centraal station goed en snel bereikbaar.

Indeling:
Eigen entree.

Begane grond:
Ruime hal/entree met tochtportaal, toilet, vaste kast en toegang tot alle vertrekken. De royale woonkamer en suite beschikt over grote raampartijen, waardoor er veel natuurlijk licht de woning binnentreedt. Dit zorgt voor een aangename sfeer. De woonkamer en suite is multifunctioneel in te richten, zoals bijvoorbeeld een eetkamer of een ruime slaapkamer. De keuken met een vaste kast beschikt over diverse soorten inbouwapparatuur, zoals een 4-pits fornuis met afzuigkap en een vaatwasser. Via de keuken heb je toegang tot de buitenruimte, gelegen op het zuidoosten. De volledig betegelde badkamer beschikt over een douche en een wastafel. Via de trap met trap/meterkast betreed je de 1e verdieping.

1e verdieping:
Overloop met toegang tot de master bedroom. De slaapkamer biedt voldoende plek voor een tweepersoonsbed en een royale kast. De slaapkamer heeft toegang tot het balkon op het zuidoosten. Er is tevens nog een extra bergruimte met wasaansluiting.

Bijzonderheden:
-Bouwjaar 1929
-Gelegen op eigen grond
-Buitenruimte op het zuidoosten
-Energielabel C
-Woonoppervlak ca. 69 m2
-Verwarming en warmwater door middel van een C.V.-ketel
-Bijdrage V.v.E. € 50,- per maand
-Projectnotaris van toepassing
-In de koopakte zal gezien het bouwjaar een ouderdoms-, feitelijke bewonings- en een funderingsclausule worden opgenomen

Wil je als eerste op de hoogte zijn van ons aanbod?
Volg ons op Instagram @vandevijver_makelaardij of TikTok @vandevijvermakelaardij

Oplevering:
-In overleg

vandeVijver Makelaardij behartigt de belangen van de verkopende partij, schakel uw eigen aankoopmakelaar in.

Bovenstaande presentatie is niet meer dan een uitnodiging tot het doen van een bod, er kunnen geen rechten of verplichtingen aan worden ontleend.

Geintereseerd?

NEEM CONTACT OP MET DE MAKELAAR