Nolensstraat 65D

3039 PP Rotterdam

Prijs

€ 425.000,- k.k.

Bouwjaar

1937

Woonoppervlakte

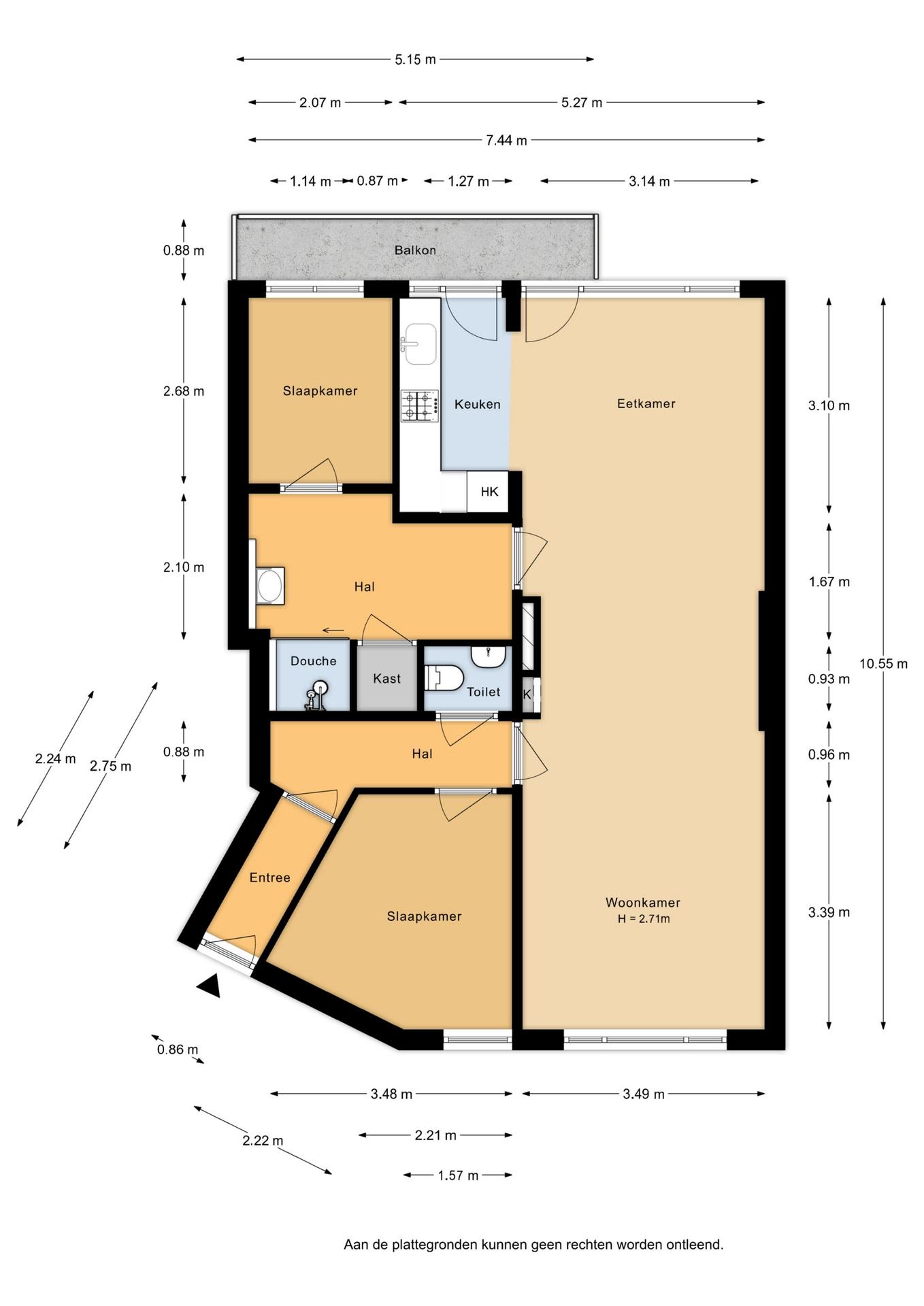
76 m2

inhoud

253 m3

Aantal kamers

3

Aantal Slaapkamers

2

Geintereseerd?

NEEM CONTACT OP MET DE MAKELAAR

Prachtige en lichte 3-kamer bovenwoning van 76 m2 met een heerlijk balkon, gelegen in de populaire wijk Blijdorp! Wonen in de stad, maar toch alle rust om je heen. De woning beschikt o.a. over een ruime woon-/eetkamer, riante slaapkamers en een balkon gelegen op het noordwesten. Ook de locatie is meer dan ideaal en super centraal met uitvalswegen, openbaar vervoer (metrostation Blijdorp), winkels, leuke restaurants en wijnbar, het Vroesenpark en het stadscentrum op loop- of fietsafstand.

Indeling:
Afgesloten portiek met toegang tot de 3e verdieping.

3e verdieping:
Entree met tochtportaal, separaat toilet en toegang tot alle vertrekken op deze verdieping. De woonkamer beschikt maar liefst over een lengte van ca. 11 meter! Door de grote raampartijen aan beide zijden treedt er veel natuurlijk licht de woning binnen, wat zorgt voor een fijne en lichte sfeer. Het woongedeelte is gelegen aan de voorzijde van de woning. Dankzij de slimme indeling zijn het eet- en zitgedeelte mooi van elkaar gescheiden, wat bijdraagt aan zowel comfort als sfeer. De ruimte biedt meer dan voldoende plaats voor zowel een royale zithoek als een ruime eettafel. De moderne half open keuken staat in directe verbinding met het eetgedeelte, dat gelegen is aan de achterzijde van de woning. De stijlvolle keuken beschikt over diverse inbouwapparatuur, zoals een 4-pits gasfornuis met afzuigkap, oven, vaatwasser en een ingebouwde koel-/vriescombinatie. Via de keuken bereik je het balkon, dat gelegen is op het noordwesten. Hier kun je heerlijk genieten van de middag-/avondzon. De master bedroom is gelegen aan de voorzijde van de woning. Dankzij de hoekligging van de master bedroom ontstaat een speels en ruimtelijk effect. Via een deur in de woonkamer bereik je een tweede hal met toegang tot een vaste kast, badkamer en de tweede slaapkamer. Deze kamer is multifunctioneel in te richten als bijvoorbeeld een kinder-, werk- of slaapkamer. De hal is voorzien van een stijlvol wastafelmeubel en biedt toegang tot de douche.

Kelder:
Behorende bij het appartement is er een externe bergruimte van ca. 2 m2.

Bijzonderheden:
-Woonoppervlakte 76 m2
-Bouwjaar 1937
-Eigen grond
-Balkon gelegen op het noordwesten
-Gelegen in een gebied dat is aangewezen als beschermd stads-/dorpsgezicht
-De VVE is actief, de bijdrage is € 188,65 per maand
-In de koopakte zal gezien het bouwjaar een ouderdoms- en funderingsclausule worden opgenomen

Wil je als eerste op de hoogte zijn van ons aanbod?
Volg ons op Instagram (vandevijver_makelaardij) of TikTok @vandevijvermakelaardij)

-Oplevering
-In overleg

vandeVijver Makelaardij behartigt de belangen van de verkopende partij, schakel uw eigen aankoopmakelaar in.

Bovenstaande presentatie is niet meer dan een uitnodiging tot het doen van een bod, er kunnen geen rechten of verplichtingen aan worden ontleend.

Geintereseerd?

NEEM CONTACT OP MET DE MAKELAAR