Provenierssingel 71A 02

3033 EH Rotterdam

Prijs

€ 639.000,- k.k.

Bouwjaar

1898

Woonoppervlakte

102 m2

inhoud

386 m3

Aantal kamers

4

Aantal Slaapkamers

2

Geintereseerd?

NEEM CONTACT OP MET DE MAKELAAR

Prachtige 4-kamer bovenwoning van 102 m2, gelegen aan de gezellige Provenierssingel. De woning beschikt over een ruime L-vormige woonkamer, grote open keuken en 2 slaapkamers. De buurt heeft een fijne sfeer met gezellige koffietentjes, goede restaurants en alles wat het centrum te bieden heeft ligt binnen handbereik. De woning ligt op slechts minuten van de Ring en op 1 minuut loopafstand van het CS: qua locatie kun je je geen betere en centralere plek wensen!

Indeling:
Eigen entree met trapopgang naar de 2e verdieping.

2e verdieping:
Overloop met toegang tot het woongedeelte. Je komt binnen in de ruime eetkamer met open keuken. Deze fijne ruimte beschikt over grote raampartijen, waardoor er veel licht de woning binnentreedt. Er is ook voldoende ruimte voor een grote eettafel, waar met een groot gezelschap gedineerd kan worden. De moderne keuken beschikt over diverse soorten inbouwapparatuur zoals een 4-pits elektrische kookplaat met afzuigkap, oven, vaatwasser en voldoende opbergruimte. Het zitgedeelte is gelegen aan de voorzijde. Door de hoekligging, in combinatie met de grote raampartijen en de speelse indeling, ontstaat een heerlijk licht en sfeervol woongedeelte. De karakteristieke erker aan de voorzijde is een echte eyecatcher. Dit is een prachtige plek met uitzicht over de singel waar je heerlijk kunt zitten, werken of ontspannen.

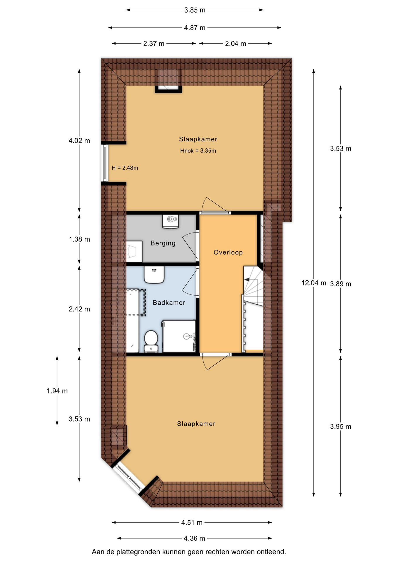
3e verdieping:
Overloop met berging en toegang tot alle vertrekken op deze verdieping. De 1e slaapkamer aan de achterzijde is erg ruim en beschikt over voldoende ruimte voor een tweepersoonsbed en een kledingkast. Bovendien zorgt de balkenstructuur voor een karakteristieke uitstraling en een warme, sfeervolle sfeer. De 2e slaapkamer is eveneens erg ruim. De volledig betegelde badkamer is voorzien van een toilet, douche, wasmachine-aansluiting, ligbad en wastafel.

Bijzonderheden:
-Eigen grond
-Bouwjaar 1898
-Woonoppervlakte 102 m2
-2 slaapkamers
-De VvE is actief, de bijdrage is € 133,- per maand
-Warm water en verwarming middels CV-ketel
-In de koopovereenkomst zal er gezien het bouwjaar een ouderdoms- en funderingsclausule worden opgenomen

-Oplevering
-In overleg

vandeVijver Makelaardij behartigt de belangen van de verkopende partij, schakel uw eigen aankoopmakelaar in.

Bovenstaande presentatie is niet meer dan een uitnodiging tot het doen van een bod, er kunnen geen rechten of verplichtingen aan worden ontleend.

Geintereseerd?

NEEM CONTACT OP MET DE MAKELAAR